Florence II |
Welcome to the Florence, a stunning 2383 sq ft home designed for modern living and comfort.
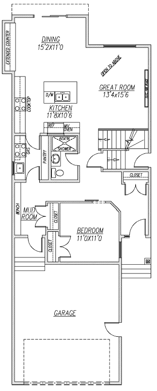
This meticulously crafted floorplan features an impressive open-to-below great room, creating a grand and airy ambiance perfect for family gatherings and entertaining guests. The gourmet kitchen boasts a built-in oven and microwave, complemented by a convenient spice kitchen for all your culinary needs.
The main floor offers the versatility of a bedroom and a full washroom, ideal for guests or multigenerational living. Upstairs, you'll find four spacious bedrooms, ensuring ample space for the whole family. The luxurious master suite includes a walk-through laundry from the ensuite closet, adding a touch of convenience to your daily routine.
Experience the perfect blend of elegance and functionality with the Augusta floorplan—your ideal home in Edmonton and surrounding areas.
Looking for even more space and flexibility? We also offer a variation of this layout featuring two master bedrooms on the upper floor, with a total of 2,383 sq. ft.—perfect for extended families or those who love extra comfort.
Model Features9' main floor ceiling |
Floorplans
![]() |
![]() |



